КОТТЕДЖ POHJAN HELMI – ИДЕАЛЬНО ПОДХОДИТ ДЛЯ ОТДЫХА НЕБОЛЬШОЙ СЕМЬИ

Бревенчатый дом,  4+2 человек, двухэтажный, электрическое отопление, система вентиляции, горячее и холодное водоснабжение, сауна на дровах, душ, комната для переодевания, подогрев пола, туалет внутри дома.

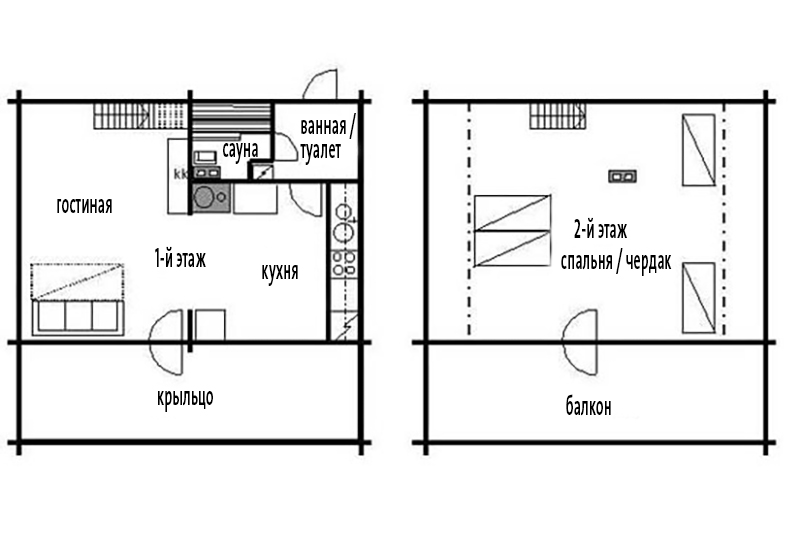
Нижний этаж: 45 м² + крыльцо 14 м², кухня и дровяная баня. Два спальных места.

Верхний этаж: 32 м² + балкон 14 м²,  спальные места для 4 человек.

Берег: Пологий песчаный берег, идеально подходит детям, удаленность коттеджа от берега – 30 м, собственная сауна на берегу, причал, место для гриля.

Оснащение

  • электрическая плита
  • микроволновая печь
  • посудомоечная машина
  • стиральная машина
  • тепловой насос источника воздуха
  • пылесос
  • камин
  • холодильник с морозильной камерой
  • кофеварка
  • телевизор, магнитола
  • посуда на 6 человек

На территории коттеджа также есть качели, место для гриля, поле для волейбола и собственная лодка.

Спальное белье Вы можете арендовать по необходимости за дополнительную плату.