КОТТЕДЖ POHJAN TÄHTI ПОДХОДИТ ДЛЯ БОЛЬШОЙ СЕМЬИ
Бревенчатый дом, 6+2 человек, двухэтажный, электрическое отопление, система вентиляции, горячее и холодное водоснабжение, сауна на дровах, душ, комната для переодевания, подогрев пола, туалет внутри дома.
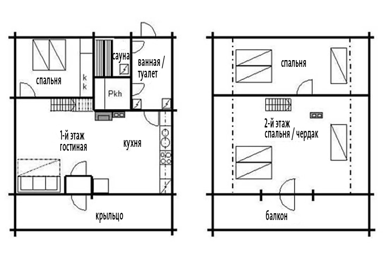
Нижний этаж: 54 м² + крыльцо 14 м², отдельная спальная комната, кухня и электрическая сауна.
Верхний этаж: 46 м² + балкон 14 м², две спальные комнаты. (номер 1), (номер 2).
Берег: Пологий песчаный берег, идеально подходит детям, удаленность коттеджа от берега – 50 м, собственная сауна на берегу, причал и место для гриля.
Оснащение
- электрическая плита
- микроволновая печь
- посудомоечная машина
- стиральная машина
- тепловой насос источника воздуха
- пылесос
- гладильная доска и утюг
- камин
- холодильник и морозильная камера
- кофеварка
- телевизор, магнитола
- посуда на 8 человек.
На территории коттеджа также есть качели, гриль, поле для волейбола и собственная лодка, для детей во дворе имеется игровой домик.
Спальное белье Вы можете арендовать по необходимости за дополнительную плату.
